Project type: Residential
Timeline: 2015 – 2016
Completion: 2017
NFA: 1,670 sf · 155 m²
GFA: 3,720 sf · 346 m²
Team: 2 architects
Role: Project lead until April 2016
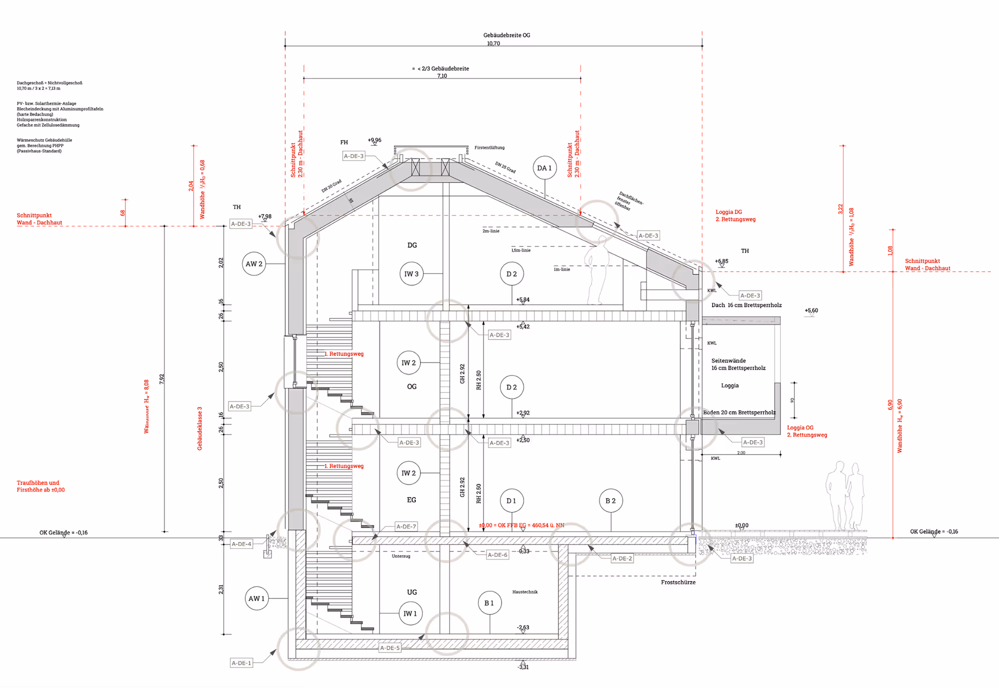
Communal living designed for seniors and people with disabilities is at the heart of this architectural concept. A continuous band along the façade links the main building with its supporting facilities. To the north, these auxiliary structures enclose a garden that provides a quiet, sheltered outdoor space. The result is a peaceful retreat set within Erding's dense, varied residential neighborhood.
The building was constructed to passive-house standards, emphasizing not only energy efficiency but also the use of renewable materials in both the structural framework and interior finishes. All apartments are fully accessible and served by an elevator.
Full project on the firm's website ↗Main Responsibilities
- Client communication in the design phase
- Application and research for government subsidies / incentives
- Construction Documents (technical details, construction drawings)
- Coordination with City for permitting process
- Cost estimation according to DIN 276
- 3D models in Design PH
- Compliancy with wheelchair accessibility for all apartments


