Project type: Residential
Timeline: 2017 – 2020
Completion: 2020
NFA: 1,670 sf · 155 m²
GFA: 4,844 sf · 450 m²
Team: 2–3 architects
Role: Project lead after CD phase and site manager
Cost: $2.27M · €2M
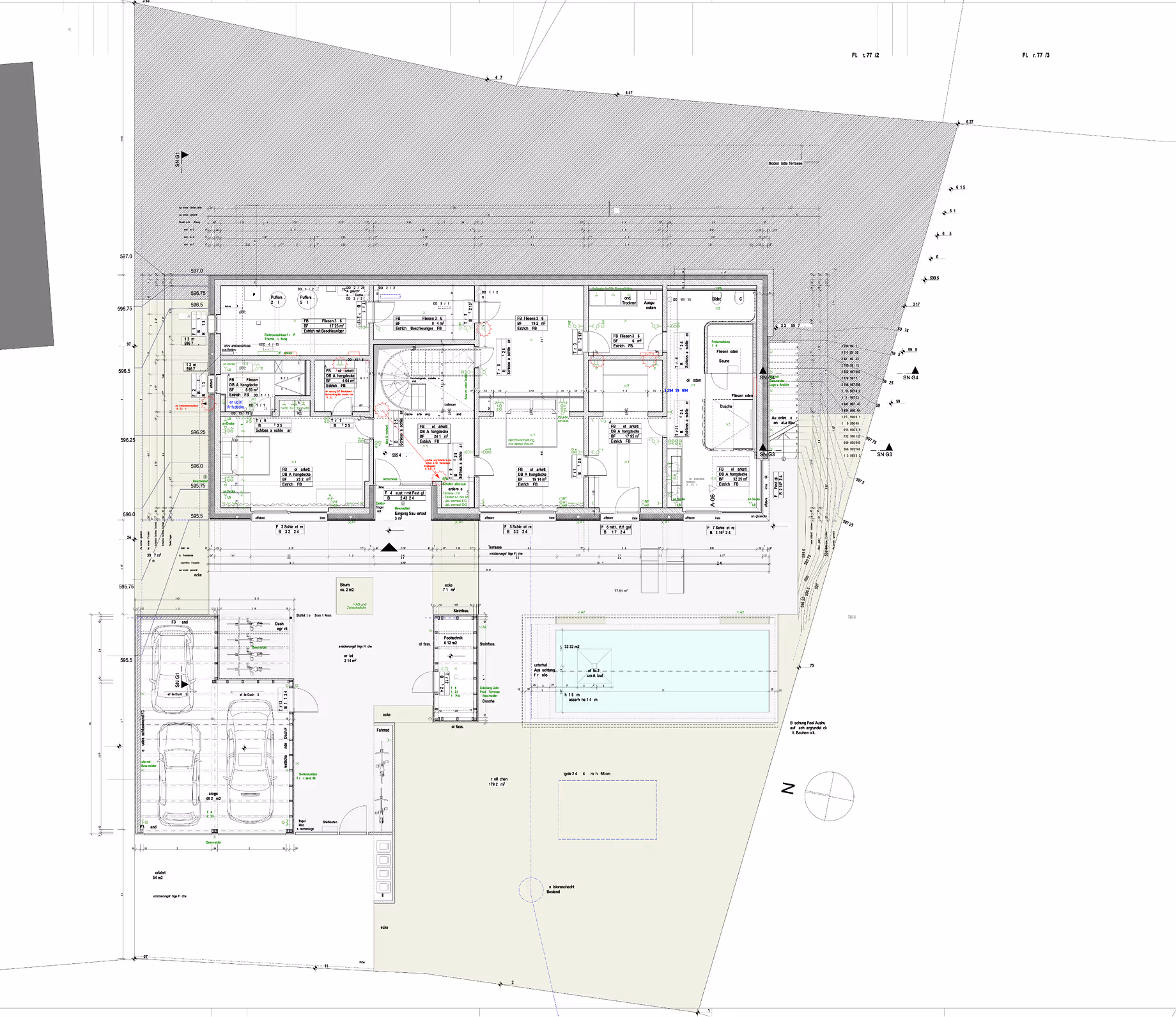
Located on the outskirts of Munich, Villa S combines a dark wooden façade on top of a stone base. This gives the villa a cabin character. Large windows promise spaciousness and elegance. The set-back upper floor creates wide south terraces. The gabled roof transitions into a glass canopy that protects the outdoor seating area. The bedroom opens directly onto an outdoor lounge and pool, creating extra attractive outdoor spaces.
A curved steel staircase leads to the living and kitchen area. The steel and glass room above the kitchen is a special feature. Dark materials define the building—black steel, dark wood floors, and black natural stone in the bathrooms. Balanced by white walls, the design feels luxurious yet warm and welcoming.
Full project on the firm's website ↗Main Responsibilities
- Client communication in the construction phase
- Application and research for government subsidies / incentives
- Construction Documents (technical details, construction drawings)
- Interior design (kitchen design, cabinets and wellness area)
- Coordination with City for permitting process (landscaping)
- Cost estimation according to DIN 276 and cost tracking
- Oversight of construction site — site management
- 3D models in Design PH
- Pre- and post-handover punch list work
Design Highlights
- Free swinging steel staircase by METALLART Treppen GmbH
- Master bathroom with integrated sauna and shower area
- Liquid metal kitchen cabinet surface (more information ↗)
- Fireplace with stone mask
- Stone stairs integrated into the terrain connecting pool to sundeck
